Quadrilocale in vendita

Reggio Nell'Emilia, Corso Benedetto Cairoli - Centro
€ 310.000
4 locali 4 locali
116 Mq 116 Mq
2 bagni 2 bagni

Quadrilocale in vendita

Reggio Nell'Emilia, Corso Benedetto Cairoli - Centro

Descrizione annuncio

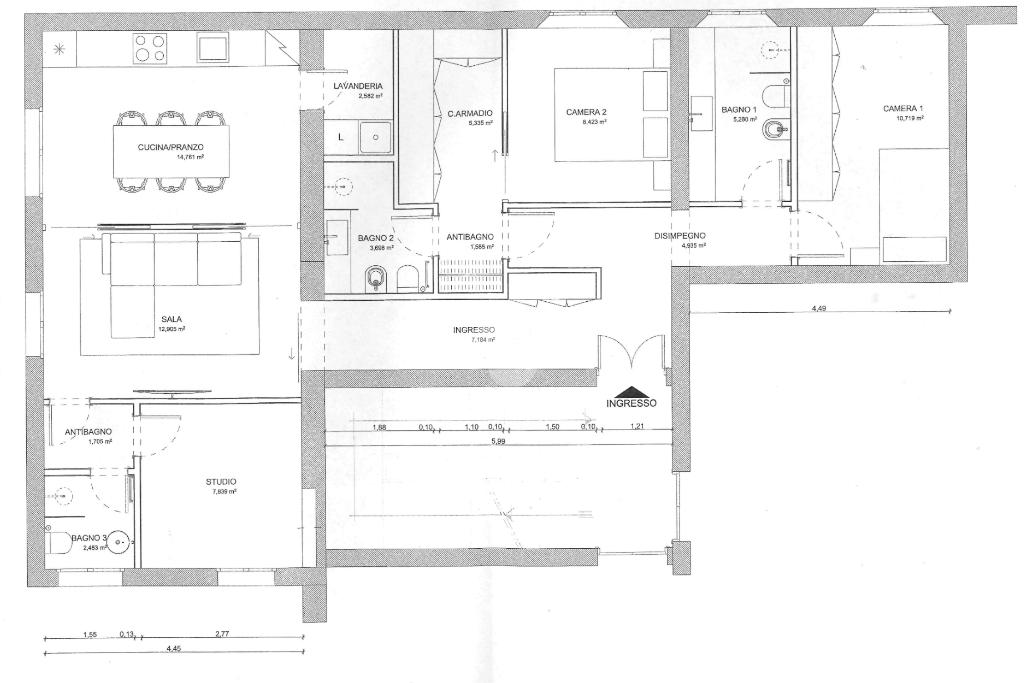
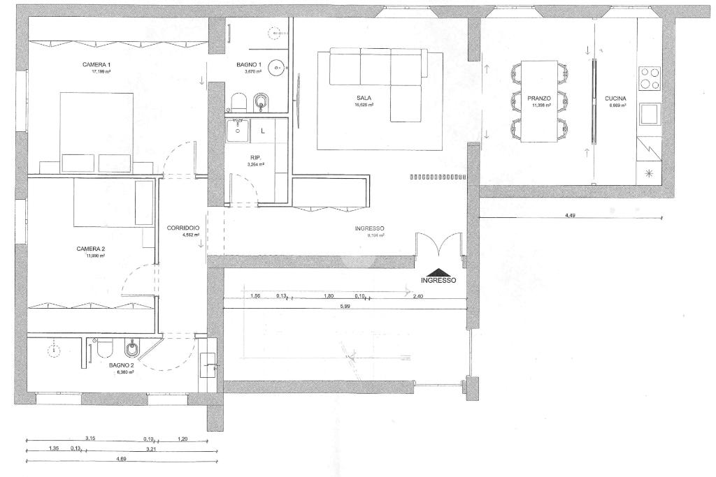
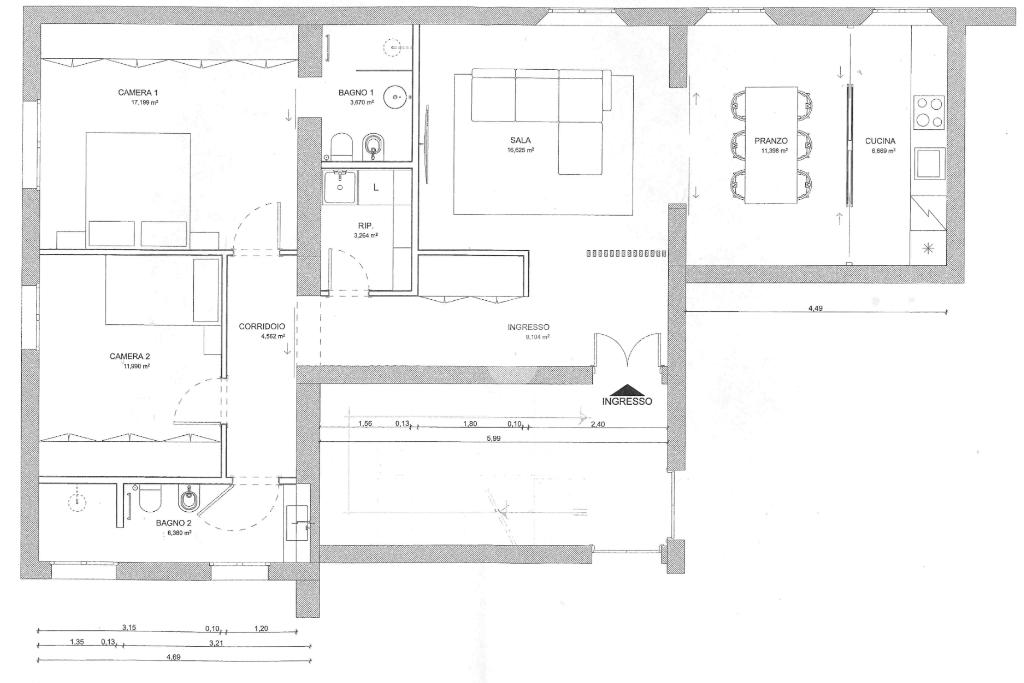
CENTRO STORICO

Nel cuore del centro di Reggio nell'Emilia, proponiamo in vendita un affascinante appartamento di prossima ristrutturazione, situato al piano basso di un edificio storico.

Un'opportunità unica per chi desidera una casa personalizzata: la ristrutturazione offre infatti la possibilità di definire la distribuzione interna degli spazi, adottandoli alle proprie esigenze abitative e al proprio stile di vita creando così ambienti su misura.

Con una superficie di 116 mq, l'immobile offre spazi ben distribuiti e funzionali. L'appartamento si compone di soggiorno, cucina separata e due ampie camere da letto con la possibilità d ricavarne una terza, ideale per uno studio o una sala hobby.

Sono presenti due bagni, progettati per garantire comfort e praticità.

Un balcone offre uno spazio esterno privato, perfetto per momenti di relax.

L'appartamento è dotato di riscaldamento a pavimento e di aria condizionata canalizzata, assicurando un ambiente confortevole in ogni stagione.

Completa la proprietà una cantina posta al piano seminterrato.

La posizione centrale permette di godere appieno delle comodità e dei servizi offerti dalla città, rendendo questa proprietà una scelta ideale per chi desidera vivere in un contesto urbano ricco di storia e cultura.

Contattaci per maggiori informazioni o per fissare un appuntamento al 0522088199 oppure mandaci una mail e verrai ricontattato al più presto:

Mostra tutto

Nelle vicinanze

Trasporto pubblico Trasporto pubblico
Reggio Emilia Santo Stefano
Reggio Emilia Santo Stefano
550 m
stazione di Reggio Emilia
stazione di Reggio Emilia
1,3 Km
Caserma Zucchi
Caserma Zucchi
100 m
Via Monte Pasubio
Via Monte Pasubio
190 m
Reggio Via Fanti
Reggio Via Fanti
690 m
Ricariche auto elettriche Ricariche auto elettriche
Eneldrive Piazza Vincenzo Gioberti
200 m
Eneldrive Nobili
350 m
Eneldrive Palazzo Vescovile
440 m
Eneldrive Viale Trento Trieste
460 m
Eneldrive Viale Regina Elena
510 m
Scuole Scuole
Liceo scientifico statale "L. Spallanzani"
60 m
Scuole
80 m
Istituto scolastico paritario "S. Vincenzo de' Paoli"
120 m
Scuola dell'infanzia comunale "Diana"
180 m
Università di Modena e Reggio Emilia
190 m
Farmacia Farmacia
Farmacia della Ghiara Farmacie comunali riunite
220 m
Farmacia Centrale
410 m
Farmacia Gardenia
440 m
Farmacia Comunale Gattaglio
490 m
Farmacia del Parco
570 m
Ospedali Ospedali
Azienda ospedaliera Arcispedale Santa Maria Nuova
2,0 Km
Casa di cura policlinica Villa Verde
2,4 Km
Supermercati Supermercati
Eurospar
460 m
Coop UNO
470 m
Esselunga
510 m
Coop Porta Castello
890 m
Conad Le Vele
1,2 Km
Negozi Negozi
Forno e panificio Umberto Zamboni
380 m
H&M
400 m
Ps Personal Shopper
400 m
Arki
460 m
CIA Confederazione Italiana Agricoltori
520 m
Bar Bar
Bar
430 m
Pellini
520 m
Canossa Bistrot
780 m
Hausbandt Caffe
780 m
The Craftsman
800 m
Ristoranti Ristoranti
Piccola Piedigrotta
50 m
Trattoria Caffetteria Sipario
110 m
Cucine Clandestine
180 m
WellDone
230 m
Il Nicchio
240 m
Mostra tutto

Caratteristiche

Rif.:
61183191
Piano:
1 di 3 (Piano basso)
Balconi:
1
Camere da letto:
2
Arredamento:
Assente
Condizionamento:
Autonomo
Mostra tutto
Prezzo Prezzo
€ 310.000
Rata mutuo Rata mutuo
€ 1.466 / mese
Spese annue Spese annue
€ 1.000
Proponi il tuo prezzoProponi il tuo prezzo

Classe Energetica

B
B
B
B
B
B
B
B
B
Anno di costruzione:
1900
Riscaldamento:
Autonomo
Tipo impianto:
A pavimento
Tipo alimentazione:
Metano

Ti interessa visionare l'immobile?

Fissa un appuntamento  Fissa un appuntamento

Richiedi informazioni

Clicca su Leggi per aprire l'informativa
* Questi campi sono obbligatori

Calcola il tuo mutuo

Semplice e senza impegno
Anticipo

( % )
Mutuo

( % )

pochi semplici passi

inserisci i tuoi dati
Questionario completato
Grazie per aver richiesto un appuntamento senza impegno con un nostro Consulente del Credito e Assicurativo.

Hai inserito correttamente tutti i dati necessari e a breve riceverai una e-mail con un link da convalidare per inviare i tuoi dati.
Affiliato
Studio San Maurizio Srl
Via Amendola, 63/A 42100 Reggio Nell'Emilia (RE)

Il nostro staff


  • Luca Pedrazzoli
    Affiliato

  • Alfonso Muto
    Collaboratore

  • Alessandro Pasquali
    Affiliato

  • Alice Rossi
    Coordinatrice
Via Amendola, 63/A 42100 Reggio Nell'Emilia (RE)
Zona: Acque Chiare-San Maurizio-Fogliano-Masone-Gavasseto-Marmirolo-Sabbione
Mostra su mappa
Affiliato
Studio San Maurizio Srl
Via Amendola, 63/A 42100 Reggio Nell'Emilia (RE)

2026 Tecnocasa Franchising S.p.A. - P. IVA 08365160152 - Via Monte Bianco 60/A 20089 Rozzano (MI). Ogni agenzia ha un proprio titolare ed è autonoma. Privacy policy | Policy utilizzo | Cookie policy